株式会社ペガサス

  • お気に入り
  • プライバシーポリシー
  • サイトマップ
株式会社ペガサス

営業時間 / 9:30~18:30 定休日 / 日曜、水曜、祝日

WOODEN BELL(ウッデン ベル) 2階

  • ペット相談
  • 楽器可

お問い合わせ番号: PGS-A05-BH-2511

部屋紹介

★【仲介手数料無料】対象物件★2路線徒歩圏内、駐車場有、ペット相談、事務所可、フローリング、バストイレ別、エアコン、照明機器、詳細は株式会社ペガサスへ【TEL03-5645-5358】お問い合わせください♪ネットに掲載されている他社様のお部屋もまとめてご紹介可能です!

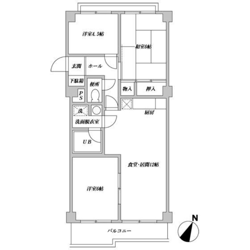
間取り 間取り詳細 面積 賃料 管理費/共益費 敷金(保証金) 礼金 採光向き
3LDK 和室 6畳
洋室 4.5畳
洋室 6畳
LDK 12畳
60.48㎡

250,000

5,000円 2ヶ月 1ヶ月

物件写真

物件情報は代表的なお部屋を掲載しております。
建物内の別の間取りでも空室がある場合がございます。
ご指名物件の空室待ちなども受付けておりますので、お電話かメールにてスタッフまでお申付下さい。
※写真や図と現況が異なる場合は現況を優先させていただきます。

部屋紹介

間取り 3LDK
間取り詳細 和室 6畳 、 洋室 4.5畳 、 洋室 6畳 、 LDK 12畳

物件概要・設備
情報登録日:2025年11月06日 情報更新日:2026年01月27日 次回更新予定日:2026年02月10日

物件種別 マンション
物件名 WOODEN BELL(ウッデン ベル)
物件所在地 東京都文京区本駒込1丁目
交通機関
  • 東京メトロ南北線「本駒込駅」より徒歩7分
  • 都営三田線「白山駅」より徒歩7分
  • JR山手線「巣鴨駅」より徒歩17分
周辺施設
  • コンビニ: セブンイレブン文京本駒込1丁目店 距離154m
  • スーパー: Santoku白山店 距離391m
特記事項 リフォーム、楽器可、事務所可、二人入居可、ネコ可、高齢者相談、ペット相談、ルームシェア対応、保証会社利用可
賃料 250,000円 管理費/共益費 5,000円
敷金 2ヶ月 礼金 1ヶ月
フリーレント - 保険 2年 20000円
間取り 3LDK 面積 60.48㎡
採光向き 契約形態 普通契約 2年
所在階 2階 入居可能日 即日
総戸数 - 竣工月 1986年11月
建築構造 RC 建物階建 地上3階  地下1階
駐車場 空無 駐車料 37,800円
火災保険 鍵交換代 -
保証会社 要加入 /  その他
お問い合わせください。
諸経費 事務手数料 入居時 11,000円
設備 ガス(都市ガス)、駐輪場、バイク置き場、振分け、フローリング、照明器具、ベランダ・バルコニー、収納スペース、バス・トイレ別(別室)、シャワー、給湯、洗面台、洗面所独立、洗濯機置き場(室内)、コンロ設置可、コンロ種類(都市ガス)、冷房のみ、エアコン、エアコン台数(1)、光ファイバー
備考 -

近隣マップ

WOODEN BELL(ウッデン ベル)へのお問い合わせ

株式会社ペガサス

03-5645-5358

お問い合せ番号: PGS-A05-BH-2511

所在地 〒103-0007 東京都中央区日本橋浜町2-55-1日本橋浜町公園グランドハイツ1F
営業時間 9:30~18:30 定休日 日曜、水曜、祝日

お問い合せフォーム

必須お名前
任意フリガナ
必須メールアドレス
任意電話番号
連絡ご希望の時間帯
任意FAX番号
任意郵送 住所
必須お問い合せ内容

個人情報のお取り扱いについて

お問い合わせフォームからお客様が入力された個人情報は、資料送付・電子メール送信・電話連絡などの目的でのみ使用いたします。 また、本サービスを円滑に運用するために、お客様の個人情報をサービスご利用の控えとして一定期間保管いたします。 メールアドレス・電話/FAX番号など、ご記入の内容が不明確でご連絡差し上げる事ができない場合、当社が本サービスを円滑に運用するために必要な範囲において直接確認のご連絡をさせていただく場合がありますのであらかじめご了承ください。 個人情報の取扱い方針については、こちらをご覧ください。